![]() Деревянные дома | ![]() Бани | ![]() Мобильные бани | ![]() Домокомплекты | ![]() Малые постройки | Сруб | ![]() Бытовки | ![]() Строительство по индивидуальным проектам | ![]() Поддоны | ![]() Пеллеты | ![]() Опилки, стружка и щепа |
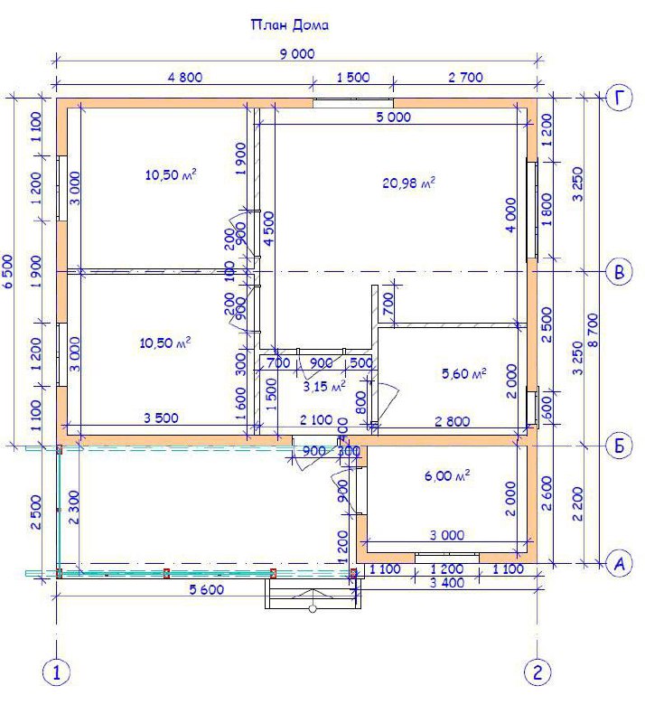
Дом 6,5х9м одноэтажный каркасный
Каркас
Линейные размеры:
6,5х9м
У нас действует скидка на строительство этого дома до 30%. Оставьте заявку и узнайте условия специально для вас.
задать вопрос
Остались какие-то вопросы? Заполните форму, мы перезвоним Вам и проконсультируем по всем вопросам
Стоимость от
3 000 000 руб.
Заявка на расчет
Остались вопросы?
Чтоб воспользоваться предложением, заполните форму
Комплектация
В проект можно вносить любые изменения:
- уменьшать / увеличивать габариты
- добавлять / убирать перегородки
- добавлять / убирать окна или менять их размеры
Размеры
- 6,5х9м
Этажность
- 1 этаж
Высота от пола до потолка
- 2,8 м
Общая площадь
- 70 м2
Жилая площадь
- 56 м2
Площадь открытых террас, крылец, балконов
- 14 м2
Описание одноэтажного каркасного дома 6,5х9м
- Фундамент свайно-винтовой, размер свай 2,5м (можно заменить на ж/б или ленточный фундамент
- Каркас собирается из доски 50х150мм
- Утепление стен по периметру 150 мм
- Окна пластиковые однокамерные
- Межкомнатные двери деревянные (временные)
- Кровельное покрытие металлочерепица (цвет и профиль на выбор)
- Внутренняя отделка вагонкой
- Внешняя отделка вагонка в четверть
- Чистовой пол шпунтовая доска 32мм






















