![]() Деревянные дома | ![]() Бани | ![]() Мобильные бани | ![]() Домокомплекты | ![]() Малые постройки | Сруб | ![]() Бытовки | ![]() Строительство по индивидуальным проектам | ![]() Поддоны | ![]() Пеллеты | ![]() Опилки, стружка и щепа |
Каркасный дом 6х11м
Остались какие-то вопросы? Заполните форму, мы перезвоним Вам и проконсультируем по всем вопросам
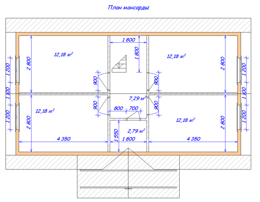
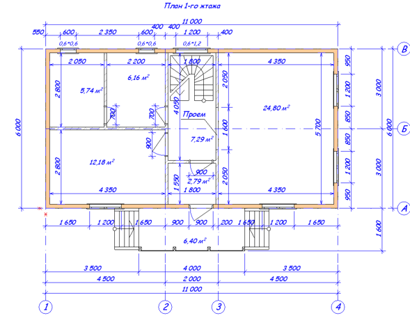
Каркасный дом 6х11м
Подъем аттиковой стены 1,5м2
Общая площадь:138м2
Жилая площадь: 123м2
Базовая комплектация каркасного дома
Фундамент
Столбчатые опоры 40х40х40см бесплатно (при отсутствии фундамента на участке)
Обвязка
Нижняя обвязка выполняется обрезным брусом сечением 100х150мм
Стены и перегородки
Каркас наружных стен выполнен из обрезной доски 40х150мм (толщина 150мм), каркас внутренних перегородок выполнен из обрезной доски 50х100мм (толщина 100мм), нижняя и верхняя обвязка каркаса перегородок выполнена из обрезной доски 50х100м. Каркас стен и перегородок с двух сторон обшит вагонкой класса «В». Утепление наружных стен производится стекло-штапельным волокном толщиной 150мм, утеплитель прокладывается с наружной стороны ветро-влагозащитной паропроницаемой мембраной, с внутренней стороны пароизоляционной мембраной. Утепление внутренних перегородок не производится. Внутренняя высота помещений на первом этаже - 2,5м.
Полы и лаги
Полы первого этажа двойные: черновой пол: обрезная доска толщиной 18-20мм, чистовые полы – половая строганная шпунтованная доска 30-40мм.
Половые лаги выполнены из обрезной доски сечением 150х50мм, балки устанавливаются с шагом ~0,5м.
Полы утеплены стекло-штапельным волокном толщиной 50мм, утеплитель прокладывается с двух сторон: снизу ветро-влагозащитной паропроницаемой мембраной, сверху пароизоляционной мембраной.
Полы мансарды настилаются поверх междуэтажных балок перекрытия дома - половой строганной шпунтованной доской 30-40мм.
Двери
В доме устанавливаются двери: входная и межкомнатные – филенчатые ДГФ (сосна): размером по коробке 2,1х0,9м – 4шт. (ручками для открывания и замками филенчатые двери не комплектуются).
Окна
В доме устанавливаются деревянные окна двойного остекления ОС ГОСТ, застекленные оконные блоки неполной заводской готовности (оконные блоки не антисептированы и не обработаны защитными составами, стекла установлены без применения замазки, отсутствуют уплотняющие прокладки на створках и притворах) размером 1,2х1,2м – 4шт, размером 0,6х0,6м – 1шт.
Лестница
Внутри дома устанавливается лестница, основные элементы которой (ступени, косоуры, тетива) изготавливаются из деревянного мебельного щита. Полезная ширина ступеней лестницы ~830мм. Сборка лестницы производится на саморезы с применением металлических уголков для крепления забежных ступеней и других элементов конструкции. Указанный на чертежах план лестницы обозначает только ее месторасположение и направление подъема, но не отражает детальную конструкцию лестницы, фактическое количество и форму ступеней.
Отделка
Горизонтальные и вертикальные углы внутренних помещений отделываются плинтусом.
Над окнами устанавливаются отливы из оцинкованного железа. Оконные и дверные проемы отделываются с двух сторон наличником.
Для захода в дом устанавливаются временные деревянные ступени.
Крыша
Форма крыши дома – мансардная двухскатная (или ломаная) с каркасными фронтонами. Кровельное покрытие – оцинкованные гофролисты. В комплект кровли входят: кровельные гофролисты, коньковые элементы, крепежи. Под конек прокладывается утеплитель от задувания снега.
Строительные работы включены в стоимость
Все перегородки, окна, двери размещаются в соответствии с Вашим индивидуальным проектом


















