![]() Деревянные дома | ![]() Бани | ![]() Мобильные бани | ![]() Домокомплекты | ![]() Малые постройки | Сруб | ![]() Бытовки | ![]() Строительство по индивидуальным проектам | ![]() Поддоны | ![]() Пеллеты | ![]() Опилки, стружка и щепа |
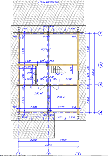
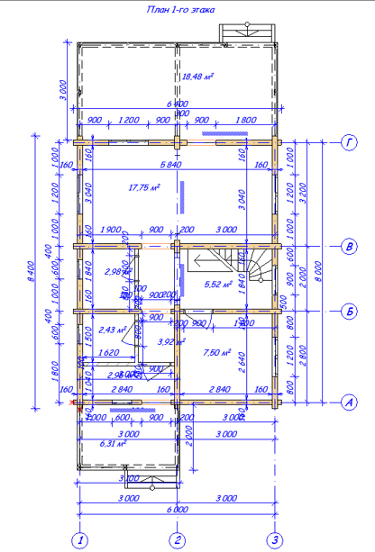
Дом 6,4х8,4м из клееного бруса 130х160мм
Остались какие-то вопросы? Заполните форму, мы перезвоним Вам и проконсультируем по всем вопросам
Дом 6,4х8,4м из клееного бруса 130х160мм
Общая площадь: 114м2
Жилая площадь: 89,35м2
Комплектация
Обвязка и лаги пола
При строительстве дома из массива нижняя обвязка дома выполняется из материала, соответствующему стеновому. При каркасной технологии нижняя обвязка выполняется обрезным брусом сечением 100х150мм.
Стены и перегородки
При строительстве дома из массива наружные стены первого этажа выполняются из материала, выбранного заказчиком для строительства (цельный брус, клееный брус, оцилиндрованное бревно). Внутренние перегородки первого этажа - каркасные, обшиваются вагонкой класса "В" с двух сторон. Каркасные перегородки устанавливаются с осадочным зазором для возможности усадки стен дома. Утепление внутренних перегородок не производится. Внутренняя высота помещений первого этажа - от 2,35 до 2,4 м. При каркасной технологии сборки дома каркас наружных стен выполняется из обрезной доски 50х150 (толщина) мм, каркас внутренних перегородок выполняется из обрезной доски 50х100 (толщина) мм. Наружные стены и внутренние перегородки обшиваются вагонкой класса "В" с двух сторон. Утепление наружных стен производится стекло-штапельным волокном толщиной 150 мм. С наружной стороны стен утеплитель прокладывается ветро- и влагозащитной паропроницаемой мембраной. С внутренней стороны - пароизоляционной мембраной. Утепление внутренних перегородок не производится. Внутренняя высота помещений первого этажа - от 2,35 до 2,4 м.
Полы и лаги
Вне зависимости от технологии строительства, полы первого этажа двойные. Черновой пол собирается из обрезной доски толщиной 19-20 мм, опирается на черепные бруски балок пола. Чистовой пол собираются из чистовой строганной шпунтованной доски толщиной 30-40мм. Половые лаги выполняются сечением 50х150 мм, балки пола устанавливаются с шагом 0,5м.
Полы первого этажа утеплены стекло-штапельным волокном толщиной 50мм, утеплитель прокладывается с двух сторон: снизу-ветро- и влагозащитной паропроницаемой мембраной, сверху - пароизоляционной мембраной.
Межэтажные перекрытия
Межэтажные балки перекрытия выполняются из доски сечением 50х150мм. Балки устанавливаются с шагом 0,5 м. и опираются на внешние стены дома и опорную балку-прогон. Потолок внутренних помещений первого этажа подшит вагонкой класса "В" снизу межэтажных балок перекрытия. Между балками закладывается утеплитель - стекло-штапельное волокно толщиной 50 мм, утеплитель прокладывается с обеих сторон пароизоляционной мембраной.
Лестница
Внутри дома устанавливается лестница, основные элементы которой (ступени, косоуры, тетива) изготавливаются из деревянного мебельного щита. Полезная ширина ступеней лестницы - 830 мм. Сборка лестницы производится на саморезы с применением металлических уголков для крепления забежных ступеней и других элементов конструкции.
Мансарда
Мансарда в базовой комплектации представляет собой одно общее помещение без перегородок. Снаружи и изнутри, включая потолок, обшита вагонкой класса "В". Утепление не производится. Пол мансарды собирается из половой строганной шпунтованной доски 30-40 мм. Высота потолка 2,4 м.
Двери и окна
В доме устанавливаются входные и межкомнатные филенчатые двери. Ручками для открывания и замками филенчатые двери не комплектуются. Окна устанавливаются деревянные двойного остекления размер 1,2х1,2.
Крыша
Изменение формы крыши с двускатной на ломанную производится бесплатно. Кровельное покрытие - оцинкованная сталь в виде гофрированных листов.
Строительные работы включены в стоимость

Новый вид сборки домов и бань из клееного бруса без выпуска позволяет значительно увеличить внутреннюю площадь помещения. При этом стоимость строения не меняется.
Сборка без выпуска может применяться при строительстве домов и бань размером до 6х6м включительно!





















